Výpis nemovitostí
Prodáno 2.12.2025






















































Fotky
Mapa
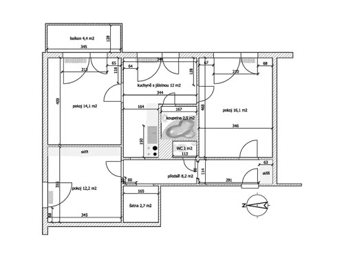
Prodaný byt 3+1 68 m²Na Kopci 4208/27, Jihlava
Prodáno 2.12.2025
Jakou hodnotu má Vaše nemovitost?
Spočítejte si odhad online. Do tří minut máte jasno. 100% zdarma.
Spočítat odhad ceny zdarma



Spočítat odhad ceny zdarma
Původní text inzerátu:
REZERVOVÁNO Představujeme vám exkluzivní nabídku rekonstruované bytové jednotky 3+1 ve velmi pěkné klidnější lokalitě města Jihlava, avšak s veškerou základní občanskou vybaveností v blízkém okolí. Tento světlý byt s podlahovou plochou bytu 68,8 m2 + 4,4 m2 balkon + 2 x sklep celkem 5 m2 se nachází ve 4. nadzemním podlaží renovovaného panelového domu původně z roku 1985, jenž prošel rekonstrukcí – r. 2002 oprava krytiny, r. 2015 nové vstupní dveře, zvonky, r. 2022 zateplení + fasáda, výměna oken, nové schránky, r. 2023 nový výtah, dlažba schodiště. Z bytu výhled do okolní krajiny díky své poloze ve 4. patře, dům je vybaven výtahem. K bytu přináleží i krytý balkon s výhledem na klidnou část města. Součástí bytu je také sklep přímo na patře bytu, který poskytuje dostatečný úložný prostor, další sklep se nachází v suterénu domu. V domě se nachází 2 velké prostory sušárny. Interiér bytu je po rekonstrukci z roku 2013 – nové bytové jádro, kuchyně, částečná výměna dveří, podlahy, výmalba. V bytě plastová okna. Výhodou je šatna v bytě o velikosti 2,7 m2, na chodbě se nachází vestavěná skříň. Orientace bytu je na východ s dostatkem světla, byt nestíní okolní domy, 1 ložnice je umístěna na sever. V domě zavedena kabelová televize a optický internet. V bytě el. na 400V z důvodu instalace indukční desky. Lokalita bytu je výhodná jak pro svou blízkost k centru města, avšak velmi klidná lokalita v těsné blízkosti parku Velký Helous vhodná pro procházky, nachází se zde dětské hřiště, amfiteátr, letní kino a zoologická zahrada. Ve vzdálenosti 300 m se nachází škola a školka. Další školka se nachází ve vzdálenosti 500 m včetně ZŠ spec. a praktické. 400 m od bytu se nachází menší obchodní centrum poskytující zdravotnické zařízení s lékárnou, prodejnu Albert, městkou knihovnu, obchody, drobné živnostníky, bowling, kavárny, bary, pizzerii. Nejbližší zastávka MHD 520 m. V okolí domu dostatek zeleně, z ložnice výhled na město a vrchol Rudný (sjezdovka Šacberk) a dostatek parkovacích míst. Doporučujeme prohlídku nemovitosti, abyste mohli ocenit umístění bytu a dostatek prostor, které tento byt nabízí. V tomto domě byl naposledy uskutečněn prodej bytu v roce 2019 a 2015. Nízká frekvence prodejů svědčí o spokojenosti bydlení v této lokalitě.
Podrobnosti
Základní údaje
Prodejní cena
4 499 000 Kč
ID zakázky
966568
Podlahová plocha
68 m2
Dispozice
3+1
Typ vlastnictví
Osobní
Podlaží
4
Příslušenství
Balkon
Ano
Sklep
5 m2
Budova
Typ konstrukce
Panel
Počet podlaží
8
Energ. náročnost budovy
G
Nalezeno v inzerátu
Stav koupelny
Zánovní
Stav kuchyně
Dobrý
Rok dokončení stavby
1999 a starší
Prodáno 2.12.2025
Jakou hodnotu má Vaše nemovitost?
Spočítejte si odhad online. Do tří minut máte jasno. 100% zdarma.
Spočítat odhad ceny zdarma



Spočítat odhad ceny zdarma
Jakou hodnotu má Vaše nemovitost?
Jakou hodnotu má Vaše nemovitost?
Spočítejte si odhad online. Do tří minut máte jasno. 100% zdarma.Dalších 119 nemovitostí v této lokalitě
Prodáno 2.12.2025





