Výpis nemovitostí


















Fotky
Mapa
Prodej bytu 1+kk 44 m²V Třešňovce, Praha
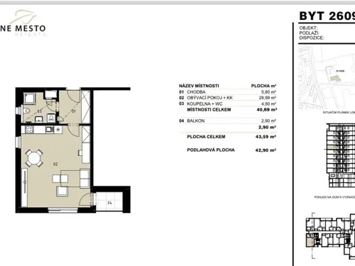
Nabízíme k prodeji světlý byt o dispozici 1+kk , který se nachází v 6. nadzemním podlaží novostavby projektu Zelené Město Heights v žádané lokalitě Praha 9 – Hrdlořezy, u Třešňovky. Byt sestává z: • prostorného obývacího pokoje s kuchyňským koutem (29,9 m²), • předsíně (5,8 m²), • koupelny s WC (4,9 m²), • a balkonu (2,9 m²) orientovaného do klidné části. Díky velkým oknům je interiér krásně prosvětlený a nabízí příjemnou atmosféru. Kvalitní standard novostavby zahrnuje moderní okna, bezpečnostní vstupní dveře, podlahové krytiny i koupelnové vybavení. Podlahove vytápění s rekuperace. Lokalita: Rezidenční projekt Zelené Město Heights navazuje na přírodní park Třešňovka a nabízí výborné propojení klidného bydlení v zeleni s kompletní občanskou vybaveností. V okolí naleznete obchody, restaurace, sportoviště i školy. Výborná je také dopravní dostupnost – zastávka tramvaje a autobusu je v pěší vzdálenosti, stanice metra A – Želivského nebo B – Palmovka je dostupná během pár minut. Výhody bytu: • novostavba ve vyšším standardu, • balkon s výhledem do zeleně, • moderní dispozice a dostatek úložného prostoru, • klidná lokalita v těsné blízkosti přírody a přitom kousek od centra. Cena bytu je 6 570 000 Kč K bytu je nutnost dokoupit sklep 180 000 Kč a parkovaci stani za 450 000 Kč. Fotografie s vybavení bytu je pouze vizualizace. Byt se prodava nezarizeny, bez kuch. koutu.
Podrobnosti
Základní údaje
Cena
6 570 000 Kč
Poznámka k ceně
cena k jednání
ID zakázky
00055
Podlahová plocha
44 m2
Dispozice
1+kk
Typ vlastnictví
Osobní
Podlaží
6
Stav
Novostavba
Příslušenství
Balkon
Ano
Sklep
Ano
Parkovací místa
1 stání
Budova
Typ konstrukce
Skeleton
Počet podlaží
10
Energ. náročnost budovy
B
Dalších 454 nemovitostí v této lokalitě





