Výpis nemovitostí






















































Fotky
Mapa
Prodej bytu 2+1 70 m²Jungmannova 911/69, Kuřim
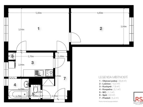
Dobrý den, nabízíme k prodeji byt 2+1 v samém centru Kuřimi, jen 200m od právě rekonstruovaného náměstí Osvobození. Malý bytový dům pouze 7 bytovými jednotkami má vynikající polohu v klidné ulici, mezi klidovou zónou u rybníku Srpek a centrem města. V blízkosti naleznete školky, školu, koupaliště s aquaparkem, zimní stadion, sportovní halu, atletický stadion, polikliniku, restaurace, Kaufland a mnoho dalších služeb. Ačkoliv je byt okamžitě obyvatelný, je vhodný spíše k celkové rekonstrukci a modernizaci. Obrovským benefitem jsou 2 mimořádně prostorné sklepy v suterénu domu. Jeden o výměře 6,7m2 a druhý téměř 12m2, náležící k bytové jednotce. Byt má již vyměněná plastová okna a stupačky v plastu. Dům (rok výstavby 1960) je v dobrém technické stavu, po rekonstrukci elektrických rozvodů ve společné části domu a nové střechy v rámci realizované přístavby. Vytápění je řešeno starším, ale plně funkčním plynovým kotlem stejně jako ohřev TUV. Byt disponuje 2 vlastními komíny (na které nejsou napojeny další byty). SVJ není zatíženo žádnými dluhy a ve fondu oprav je naspořeno cca 500.000,–Kč. Mimo výhledově plánované zateplení budovy nejsou třeba žádné větší investice. Měsíční náklady: Vodné, stočné: 320,–Kč Ostatní (komíny, spol. elektřina, atd.):41,–Kč Fond oprav: 699,–Kč Správní poplatek:120.00,–Kč Plyn: 800,–Kč Elektřina: 710,–Kč Město Kuřim (aktuálně s cca 11.000 obyvateli) nabízí opravdu nadstandartní možnosti sportovního vyžití (wellness centrum s letním koupalištěm, zimní stadion, víceúčelová sportovní hala, atletický stadion, golf resort Kaskáda, spousta sportovní oddílů a kroužků), kulturních možností (kulturní centrum s kinem, koncerty, letní kino a všemožné akce na kuřimském zámku) a je skvělým místem k bydlení zejména pro vynikající občanskou vybavenost (školky, školy, obchody, služby) a snadnou dopravní dostupností Brna (zrekonstruované vlakové nádraží, autobusy IDS, autem cca 15min.) Pro více informací nebo domluvení osobní prohlídky bytu, neváhejte kontaktovat uvedeného makléře, těším se na viděnou! P.S.: Rádi Vám pomůžeme také se získáním výhodného financování!
Podrobnosti
Základní údaje
Cena
4 990 000 Kč
Podlahová plocha
70 m2
Dispozice
2+1
Typ vlastnictví
Osobní
Podlaží
1
Příslušenství
Sklep
Ano
Budova
Typ konstrukce
Panel
Dalších 79 nemovitostí v této lokalitě





