Výpis nemovitostí
































Fotky
Mapa
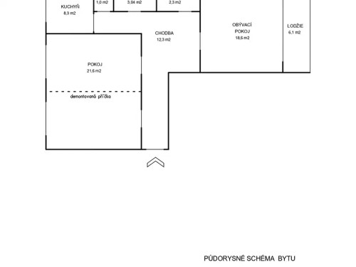
Prodej bytu 2+1 73 m²Mládežnická 1981, Nymburk
Nabízíme k prodeji byt o dispozici 2+1 s celkovou plochou 73 m², jehož součástí je lodžie o výměře 6 m² a sklepní kóje. Bytová jednotka se nachází v sedmém patře bytového domu s výtahem. Dispozice byla původně řešena jako 3+1. Nyní je upravena na 2+1. V případě potřeby lze prostor jednoduše vrátit do původního uspořádání. Byt je v původním stavu a nabízí možnost rekonstrukce podle představ nového majitele. Velkým bonusem je prostorná lodžie s krásným výhledem do okolí. Obyvatelé domu mohou využívat také společnou sušárnu a kolárnu. Dům stojí v žádané lokalitě Nymburka. V blízkosti se nachází obchody, restaurace, školy, školky, zdravotnická zařízení, sportoviště i zastávky MHD. Centrum města je snadno dostupné pěšky i veřejnou dopravou. Byt je k dispozici ihned. S financováním koupě vám rádi pomůžeme. Veškeré další informace vám poskytnu při osobní prohlídce, na kterou se budu těšit.
Podrobnosti
Základní údaje
Cena
5 590 000 Kč
ID zakázky
0305-NP00802
Podlahová plocha
73 m2
Dispozice
2+1
Typ vlastnictví
Osobní
Podlaží
7
Příslušenství
Lodžie
6 m2
Sklep
3 m2
Budova
Typ konstrukce
Panel
Počet podlaží
8
Energ. náročnost budovy
B
Dalších 32 nemovitostí v této lokalitě





