Výpis nemovitostí
















































Fotky
Mapa
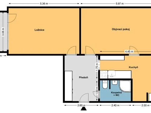
Prodej bytu 2+1 64 m²Lábkova 897/9, Plzeň 3 - Skvrňany
Načítání úrokové sazby...
Nabízíme k prodeji byt o dispozici 2+1 a celkové výměře 69 m², který se nachází ve 4. patře revitalizovaného a velmi dobře udržovaného panelového domu v ulici Lábkova v plzeňských Skvrňanech. Nabízí praktické dispoziční řešení se samostatnou kuchyní, dvěma obytnými pokoji, lodžií o velikosti 4 m² a prostornou předsíní. Součástí bytu je i sklepní kóje o velikosti 1 m². Koupelnové jádro je zděné, ostatní části prošli rekonstrukcí v minulosti, která již neodpovídá současným standardům. Nabízí se tím ideální možnost vytvořit si bydlení přesně podle vlastních představ. Nemovitost je vhodnou volbou pro ty, kteří hledají vlastní bydlení s možností rekonstrukce nebo zajímavou investici. Nemovitost se nachází ve vyhledávané lokalitě Plzeň Skvrňany, která nabízí kompletní občanskou vybavenost a dobrou dopravní dostupnost do centra města. V okolí se nachází školy, školky, obchody, zdravotní služby i možnosti pro sportovní a volnočasové aktivity. Energetická náročnost budovy je dle platné legislativy třídy C, tedy úsporná. Uvedená cena je konečná, včetně kompletního právního a realitního servisu. S financováním této nemovitosti Vám rádi pomůžeme. Pro více informací nebo sjednání prohlídky nás neváhejte kontaktovat.
Podrobnosti
Základní údaje
Cena
4 690 000 Kč
Podlahová plocha
64 m2
Dispozice
2+1
Typ vlastnictví
Osobní
Podlaží
4
Stav
Před rekonstrukcí
Příslušenství
Lodžie
4 m2
Sklep
1 m2
Budova
Typ konstrukce
Cihla
Energ. náročnost budovy
C
Nalezeno v inzerátu
Stav koupelny
Zánovní
Stav kuchyně
Dobrý
Rok dokončení stavby
1999 a starší
Načítání úrokové sazby...
Dalších 81 nemovitostí v této lokalitě





