Výpis nemovitostí


































Fotky
Mapa
Prodej bytu 2+1 58 m²Větrný Jeníkov 164, Větrný Jeníkov
Načítání úrokové sazby...
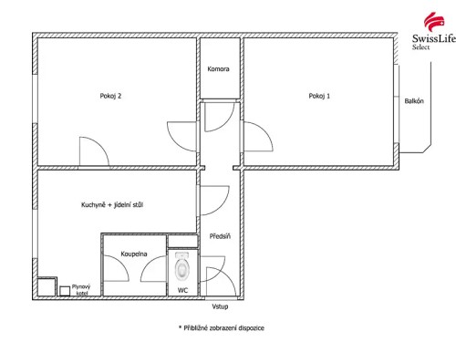
Nabízím ke koupi bytovou jednotku o dispozici 2+1 a ploše přibližně 58 m² ve Větrném Jeníkově. Byt je umístěn ve 3. nadzemním podlaží z celkových 3 v zatepleném bytovém domě o sedmi bytech bez výtahu. K bytu náleží sklepní kóje v přízemí o ploše přibližně 1,5 m² a 2 m² balkón na jižní straně. Vytápění a ohřev vody jsou řešeny vlastním plynovým kotlem. Parkování pohodlné přímo před bytovým domem. Větrný Jeníkov je vyhledávaný městys s kompletní občanskou vybaveností – mateřská a základní škola, obchody, restaurace, pošta i sportovní areál. Výborná dostupnost do Jihlavy a rychlé napojení na D1 zajišťují pohodlné každodenní dojíždění. K bytu je možné za zvýhodněnou cenu dokoupit pár set metrů vzdálenou zahradu o velikosti 308 m². Cena samostatně 390.000 Kč, ceny s tímto bytem 300.000 Kč. Pro domluvení prohlídky neváhejte zavolat.
Podrobnosti
Základní údaje
Cena
3 250 000 Kč
ID zakázky
25113
Podlahová plocha
58 m2
Dispozice
2+1
Typ vlastnictví
Osobní
Podlaží
3
Příslušenství
Sklep
Ano
Balkon
2 m2
Doplňující informace
Topení
Plynové topení
Budova
Typ konstrukce
Panel
Počet podlaží
3
Energ. náročnost budovy
G
Načítání úrokové sazby...
Dalších 65 nemovitostí v této lokalitě





