Výpis nemovitostí
O tuto nemovitost je velký zájem












































Fotky
Mapa
Prodej bytu 3+1 76 m²U pošty 280/3, Brno - Starý Lískovec
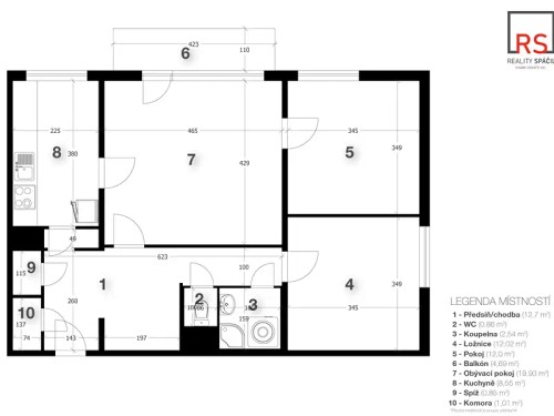
Nabízíme k prodeji prostorný a světlý byt v atraktivní a vyhledávané lokalitě Brno – Starý Lískovec. Byt se nachází ve 4. patře zrevitalizovaného panelového domu (zateplení, nová okna, moderní výtah, stupačky). Dům vyniká svou energetickou náročností v úsporné třídě B, což zaručuje velmi nízké provozní náklady. Lokalita, kde máte vše po ruce. Starý Lískovec kombinuje perfektní občanskou vybavenost s přírodou na dosah. V blízkosti domu se nachází: • Brněnský Campus a Fakultní nemocnici (byt je tak ideální i jako investice na pronájem). • Přírodní rezervaci Kamenný vrch. • Zastávky MHD, nákupní centrum a dostatek parkovacích míst přímo u domu. • Rychlé a pohodlné spojení do centra Brna. Byt po částečné rekonstrukci: Interiér je připraven k okamžitému nastěhování a nabízí: • Moderní kuchyňskou linku s vestavěnými spotřebiči (plynový sporák, horkovzdušná trouba, myčka, digestoř, granitový dřez). • Zděné jádro s koupelnou se sprchovým koutem a odděleným WC. • Množství úložných prostor díky dvěma komorám přímo v hale bytu. • Prostorný balkon (5 m²) s orientací na západ, který nabízí uklidňující výhled do zeleně. K bytu náleží také sklep (2 m²) a možnost využívat společnou kočárkárnu/kolárnu. Finanční kondice a náklady: Dům je ve vynikající správě – SVJ nemá žádné dluhy, na fondu oprav je naspořeno přes 880 000 Kč a v nejbližší době nejsou plánovány žádné velké investice. Byt samotný je bez jakýchkoliv závazků či věcných břemen. Měsíční náklady (kompletní rozpis): 5 600 Kč (Zahrnuje fond oprav 1 091 Kč, teplo 1 760 Kč, vodné/stočné 976 Kč, ohřev TUV 1 046 Kč a další poplatky spojené s chodem domu). V případě zájmu o více informací či domluvení prohlídky napište na uvedený email Vaše kontaktní údaje, zavolám Vám pro domluvení prohlídky. Těším se na setkání! P.S.: Rádi vám pomůžeme také se zajištěním výhodného financování na míru.
Podrobnosti
Základní údaje
Cena
7 690 000 Kč
Podlahová plocha
76 m2
Dispozice
3+1
Typ vlastnictví
Osobní
Podlaží
4
Příslušenství
Lodžie
Ano
Sklep
Ano
Budova
Typ konstrukce
Panel
Energ. náročnost budovy
B
Dalších 83 nemovitostí v této lokalitě
O tuto nemovitost je velký zájem





