Výpis nemovitostí
O tuto nemovitost je velký zájem
















































Fotky
Mapa
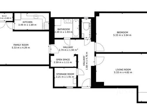
Prodej bytu 3+1 88 m²Biskupcova 1891/28, Praha 3 - Žižkov
Ve výhradním zastoupení majitele Vám nabízím zprostředkování prodeje velmi příjemného světlého bytu po kompletní rekonstrukci. Byt má dispozici 3+1, plochu 88 m² a nachází se v posledním 5. patře cihlové budovy bez výtahu ve vyhledávané městské části Praha 3 – Žižkov v ulici Biskupcova. Klíčové informace k nemovitosti: - plocha bytu 88 m², šatna v bytě - dispozice 3+1 s velmi praktickou dispozicí - byt je po celkové rekonstrukci - jednotka se nachází v posledním 5. patře cihlové budovy bez výtahu - společný vnitroblok k užívání - jižní orientace dvou pokojů do rozlehlého vnitrobloku se vzrostlou zelení - severně orientovaná obývací část s kuchyní směrem do ulice Klíčové informace k lokalitě: - skvělá občanská vybavenost a dopravní dostupnost - mateřská i základní škola, - sportovní a dětská hřiště, místní kavárny, restaurace, kino Aero a Lidl - parky Parukářka a Židovské pece, které jsou vhodné k relaxaci či sportování - tramvajová zastávka Biskupcova a Vozovna Žižkov jsou vzdáleny pouhých 200 m - návaznost na stanici metra Jana Želivského a Flora a centrum města Důležité informace k prodeji: - zájemce nehradí provizi RK! - majitelka si vyhrazuje právo výběru nejvýhodnější nabídky v případě více zájemců - možnost zprostředkování atraktivního financování Průkaz energetické náročnosti není k dispozici, proto je uváděn stupeň "G". Pokud Vás tato nemovitost zaujala, neváhejte mě kontaktovat, rád Vám tento byt osobně představím.
Podrobnosti
Základní údaje
Cena
12 990 000 Kč
ID zakázky
J12500
Podlahová plocha
88 m2
Dispozice
3+1
Typ vlastnictví
Osobní
Podlaží
6
Doplňující informace
Topení
Elektrické topení
Budova
Typ konstrukce
Cihla
Počet podlaží
6
Energ. náročnost budovy
G
Nalezeno v inzerátu
Stav koupelny
Zánovní
Stav kuchyně
Zánovní
Rok dokončení stavby
1999 a starší
Dalších 562 nemovitostí v této lokalitě
O tuto nemovitost je velký zájem





