Výpis nemovitostí
































Fotky
Mapa
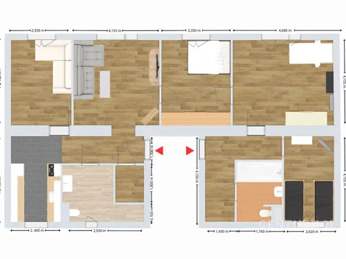
Prodej bytu 5+1 111 m²M. Ryšky 832, Orlová - Poruba
Zrekonstruovaný investiční byt 5+1 (111m²) s okamžitým výnosem, Orlová Na ulici M. Ryšky v Orlové, Vám nabízíme ke koupi nadstandardní bytovou jednotku v osobním vlastnictví, která vznikla promyšleným propojením dvou bytů. Výsledkem je prostor o dispozici 5+1, který v této lokalitě prakticky nemá konkurenci a představuje ideální volbu pro investory hledající stabilitu a okamžitý výnos. Celý prostor prošel kompletní rekonstrukcí a nabízí moderní standard bydlení. Dispozice zahrnuje pět samostatných pokojů a dvě koupelny, což je na trhu nájemního bydlení velmi žádaný a nedostatkový parametr. Hlavním benefitem této nabídky je fakt, že byt je dlouhodobě obsazen spolehlivými nájemníky. Pro nového majitele to znamená bezstarostnou investici bez nutnosti řešit stavební úpravy nebo hledat nové obsazení. K bytu náleží výjimečný bonus v podobě zahrady o výměře cca 560 m². Ta je v bezplatném nájmu od města, což nájemníkům nabízí soukromý prostor pro relaxaci nebo zahradničení v bezprostřední blízkosti domova, a to bez jakýchkoliv nákladů na nájemné. Lokalita ulice M. Ryšky je známá svým klidnějším prostředím s dostatkem zeleně a dobrou dostupností všech služeb, což zaručuje dlouhodobou atraktivitu této nemovitosti. Pokud hledáte hotový investiční produkt v osobním vlastnictví, který generuje výnos od prvního dne a nevyžaduje další časové investice, rád Vám poskytnu detailní informace o nájemních vztazích a nákladech na provoz.
Podrobnosti
Základní údaje
Cena
2 825 500 Kč
ID zakázky
972441
Podlahová plocha
111 m2
Dispozice
5+1
Typ vlastnictví
Osobní
Podlaží
1
Příslušenství
Sklep
Ano
Budova
Typ konstrukce
Cihla
Počet podlaží
2
Energ. náročnost budovy
G
Nalezeno v inzerátu
Stav koupelny
Dobrý
Stav kuchyně
Zánovní
Rok dokončení stavby
1999 a starší
Dalších 88 nemovitostí v této lokalitě





