Výpis nemovitostí
















































































Fotky
Mapa
Prodej domu 111 m², pozemek 228 m²21. dubna 515, Valtice
Načítání úrokové sazby...
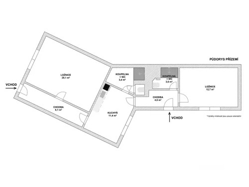
Valtice - jedna z nejžádanějších vinařských lokalit jižní Moravy. Právě zde nabízíme k prodeji rodinný dům, který díky svému dispozičnímu řešení nabízí široké možnosti využití – zejména pro vícegenerační bydlení, kombinaci bydlení a podnikání nebo částečný pronájem. Dům je rozdělen na dvě samostatné jednotky (4 apartmány), které lze využívat odděleně i jako jeden celek. Dispozice a uspořádání Apartmány 1 a 2: - vhodné jako hlavní obytná část domu - sdílená plně vybavená kuchyň - každý apartmán má vlastní koupelnu (sprchový kout, WC, umyvadlo) - možnost oddělení uzamykatelnými dveřmi Apartmány 3 a 4: - samostatný vstup a chodba - každý apartmán má vlastní kuchyňku a sociální zázemí - vhodné pro další členy rodiny, hosty nebo podnikání Nemovitost je v současnosti využívána ke krátkodobému pronájmu a je možné navázat na stávající provoz. Lokalita Valtice jsou součástí Lednicko-valtického areálu a patří mezi nejvyhledávanější lokality jižní Moravy. Nabízí kompletní občanskou vybavenost, výbornou dostupnost a široké možnosti volnočasových aktivit. Ráda vás provedu touto krásnou nemovitostí. Pro více informací nebo sjednání prohlídky mě neváhejte kontaktovat.
Podrobnosti
Základní údaje
Cena
7 490 000 Kč
ID zakázky
184
Typ budovy
Rodinný dům
Podlahová plocha
111 m2
Plocha pozemku
228 m2
Doplňující informace
Typ konstrukce
Cihla
Topení
Jiné (i bez topení)
Nalezeno v inzerátu
Stav koupelny
Zánovní
Stav kuchyně
Zánovní
Rok dokončení stavby
1999 a starší
Lokalita nemovitosti
Načítání úrokové sazby...
Dalších 120 nemovitostí v této lokalitě





