Výpis nemovitostí






















Fotky
Mapa
Prodej stavebního pozemku 1977 m²Petrovice u Karviné, okres Karviná
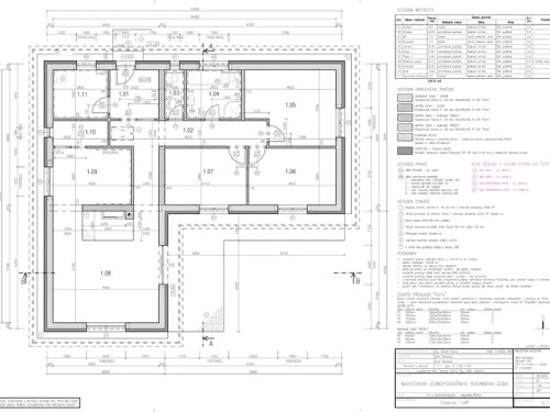
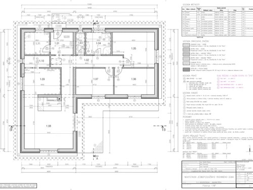
Exkluzivně nabízím ke koupi mírně svažitý a velmi slunný stavební pozemek trojúhelníkového tvaru ležící u obecní asfaltové silnice. Pozemek je situován na vyvýšenině v malé zástavbě rodinných domů, a přesto v dobrém dosahu do centra obce a do nedaleké Karviné. Na pozemek je přivedeno elektrické vedení a vodovodní přípojka. Odpadní vodu je možné řešit čističkou odpadních vod, přičemž na řešení je již rovněž vydano kladné stanovisko. K pozemku je projekt domů včetně umístění na pozemku a v současné době již běží lhůta pro vydání stavebního povolení včetně povolení na čističku odpadních vod, takže stavbu lze zahájit v nejbližší době. Doporučuji prohlídku. Financování zajistím svým hypotečním spolupracovníkem.
Podrobnosti
Základní údaje
Cena
2 099 000 Kč
Poznámka k ceně
Nová cena!!
ID zakázky
0033
Typ budovy
Stavební pozemek
Dalších 89 nemovitostí v této lokalitě





