Výpis nemovitostí
























































Fotky
Mapa
Prodej bytu 2+kk 52 m²Poděbradská 1158/49, Praha 9 - Hloubětín
10 490 000 Kč
Načítání úrokové sazby...
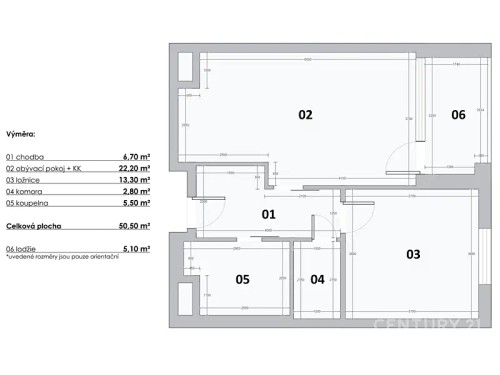
Pokud hledáte designové bydlení kousek od centra stověžaté Prahy, mohl by Vás zaujmout právě tento dvoupokojový byt v developerském projektu Nová Elektra. Když vstoupíte do tohoto útulného, nadstandardně vybaveného bytu, zastaví se Vám dech. Je zde propracovaný každý detail s důrazem na jednoduchost a design. Jednotka se nachází v šestém nadzemním podlaží s výtahem. Okna všech místností jsou orientovaná na jih, byt je díky tomu krásně světlý. Kuchyňská linka je vyrobena na míru od truhláře s vestavěnými spotřebiči. Z obývacího pokoje je přímý vstup na prostornou lodžii, kde si můžete užívat slunné jarní a letní dny s šálkem horké kávy. Ložnice je vybavena kvalitní manželskou postelí s výhledem do ulice. Velkou výhodou jednotky je dostatek úložného prostoru díky samostatné komoře, kam můžete uložit spoustu věcí, jako další úložný prostor slouží vestavěné skříně v ložnici a na chodbě. Když jsem prvně viděla koupelnu, byla jsem nadšena, jak je luxusní a stylová. Dveře do všech místností jsou vyrobeny na míru z velmi kvalitních materiálů. K jednotce je možné dokoupit garážové parkovací stání za 600 000 Kč. Hloubětín prošel během několika let velkou proměnou, je zde veškerá občanská vybavenost a výborná dostupnost do centra. Kousek od vstupních dveří domu jsou potraviny Žabka, kde najdete veškerý potřebný sortiment na rychlý nákup. Potraviny Billa, lékárna, drogerie Teta a obchody s oblečením jsou 3 minuty chůzí od domu. Pro milovníky přírody a sportu je zde oblíbený park Rokytka, cyklostezky a spousta zeleně v okolí. Nejbližší zastávka tramvaje MHD je přímo u domu U Elektry a za pět minut se dostanete na stanici metra B Palmovka. Těším se na setkání s Vámi při prohlídce tohoto jedinečného bytu.
Podrobnosti
Základní údaje
Cena
9 990 000 Kč
Poznámka k ceně
K bytu je možné dokoupit garážové parkovací stání za 600 000 Kč.
ID zakázky
975689
Podlahová plocha
52 m2
Dispozice
2+kk
Typ vlastnictví
Osobní
Podlaží
6
Stav
Novostavba
Příslušenství
Lodžie
5 m2
Garáž
Ano
Budova
Typ konstrukce
Jiný
Počet podlaží
8
Energ. náročnost budovy
B
Nalezeno v inzerátu
Stav koupelny
Výborný
Stav kuchyně
Výborný
Rok dokončení stavby
2021
10 490 000 Kč
Načítání úrokové sazby...
Dalších 550 nemovitostí v této lokalitě





