Výpis nemovitostí




































































Fotky
Mapa
Prodej domu 323 m², pozemek 964 m²Měsíční 1965, Černošice
Načítání úrokové sazby...
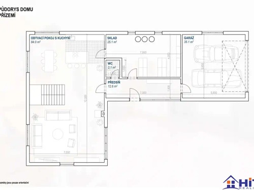
Nabízíme k prodeji moderní rodinný dům o dispozici 5+kk, užitné ploše 323 m2, s dvojgaráží a pozemkem o výměře 964 m2, který se nachází ve vyhledávané vilové čtvrti v ulici Měsíční, Černošice. Nemovitost je situována v klidné rezidenční zástavbě moderních rodinných domů a nabízí ideální kombinaci soukromí, prostoru a výborné dostupnosti do Prahy. Dům je rozdělen do dvou nadzemních podlaží. V přízemí se nachází velkorysý obývací prostor s kuchyňským koutem a jídelnou, který díky své velikosti a otevřenosti tvoří přirozené centrum celého domu. Dále je zde technická místnost, samostatná toaleta s umyvadlem a chodby zajišťující praktické propojení jednotlivých částí domu se vstupem na zahradu. V patře jsou situovány čtyři prostorné ložnice a dvě koupelny. Jedna z ložnic má přímý vstup na velkou terasu, která nabízí příjemný prostor pro relaxaci s výhledem do okolní zeleně. Součástí domu je dvojgaráž s automatickým vjezdem a možnost dalšího parkování přímo na pozemku. Vytápění je řešeno plynovým kotlem s podlahovým topením, komfort bydlení doplňují krbová kamna, která vytvářejí příjemnou atmosféru zejména v chladnějších měsících. Pozemek poskytuje dostatek prostoru pro zahradní úpravy, venkovní posezení, dětské hřiště i relaxační zónu. Zahrada je rovinatá a připravená k dotvoření dle představ budoucího majitele. Lokalita Černošice patří dlouhodobě mezi nejžádanější oblasti v okolí Prahy. Nabízí kompletní občanskou vybavenost - mateřské a základní školy, obchody, restaurace, kavárny, zdravotnická zařízení i sportovní vyžití. Velkou výhodou je vlakové spojení do centra Prahy, které umožňuje pohodlné každodenní dojíždění, stejně jako rychlé napojení na hlavní silniční tahy. Tato nemovitost představuje ideální příležitost pro ty, kteří hledají moderní, prostorné rodinné bydlení ve vilové čtvrti s výbornou dostupností do hlavního města. Rádi Vás přivítáme na osobní prohlídce a poskytneme veškeré doplňující informace.
Podrobnosti
Základní údaje
Cena
24 000 000 Kč
ID zakázky
606
Typ budovy
Rodinný dům
Podlahová plocha
323 m2
Plocha pozemku
964 m2
Parkování
Parkovací místa
1 stání
Doplňující informace
Typ konstrukce
Cihla
Počet podlaží
2
Topení
Plynové topení
Lokalita nemovitosti
Načítání úrokové sazby...
Dalších 110 nemovitostí v této lokalitě





