Výpis nemovitostí














































Fotky
Mapa
Prodej domu 238 m², pozemek 2377 m²Červená Voda, okres Ústí nad Orlicí
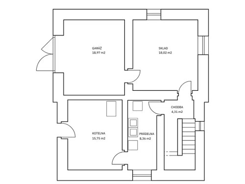
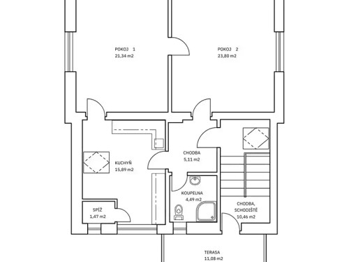
Představujeme vám jedinečný rodinný dům v malebné Červené Vodě, na pomezí Orlických hor a Jeseníků – místo, kde se klid horské přírody snoubí s komfortem pohodlného bydlení. Tento prostorný dům nabízí dvě samostatné bytové jednotky 2+1 a příjemnou terasu, celková podlahová plocha přesahuje 70 m² a terasa má 11 m². Interiéry jsou sice původní, ale zachovalé, a obě koupelny již prošly modernizací, takže jsou připravené k okamžitému používání. Nemovitost stojí na rozlehlém pozemku o velikosti 2 377 m², který nabízí nejen krásnou zahradu, ale i dvojgaráž, samostatnou saunu a dílnu se skladovacími prostory. Pozemek je stavební a existuje možnost jeho rozdělení, takže zde lze vybudovat další rodinný dům. Na jeho hranici protéká potůček, který dotváří poklidnou a jedinečnou atmosféru tohoto místa. Díky své rozmanitosti je dům ideální pro vícegenerační bydlení, rekreaci, nebo jako investice do apartmánového provozu. Stavba je pevná a stabilní, s obvodovým zdivem 450 mm a falcovanou plechovou střechou, okna jsou špaletová. Plynový kotel s automatickou regulací zajišťuje vytápění i ohřev vody a poskytuje základ pro případné modernizace a úpravy podle představ nového majitele. Červená Voda je vyhledávanou lokalitou – v blízkosti najdete skiareály Buková Hora, Čenkovice či Dolní Morava, ideální pro lyžaře, cyklisty i pěší turisty. Obec nabízí kompletní občanskou vybavenost: školu, školku, lékaře, lékárnu, poštu a obchody. Další výhodou je možnost využití státní dotace „Oprav dům po babičce", která usnadní případnou modernizaci. Tento dům tak představuje nejen skvělé místo pro pohodlné bydlení, ale i perspektivní investici s potenciálem rychlé návratnosti. V případě zájmu o prohlídku nás neváhejte kontaktovat! *uvedené výměry jsou orientační
Podrobnosti
Základní údaje
Cena
5 500 000 Kč
ID zakázky
0305-NP00617
Typ budovy
Rodinný dům
Podlahová plocha
238 m2
Plocha pozemku
2377 m2
Doplňující informace
Typ konstrukce
Jiný
Počet podlaží
3
Energ. náročnost budovy
G
Nalezeno v inzerátu
Stav koupelny
Dobrý
Stav kuchyně
Dobrý
Dalších 63 nemovitostí v této lokalitě





