Výpis nemovitostí
O tuto nemovitost je velký zájem






















































Fotky
Mapa
Prodej domu 387 m², pozemek 1952 m²Ropická, Český Těšín
Načítání úrokové sazby...
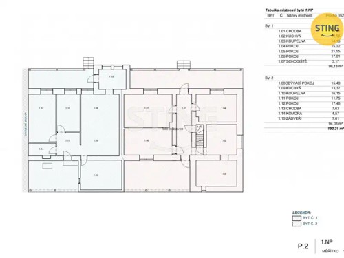
Rodinný dům se dvěma bytovými jednotkami, samostatné vstupy, terasy, zahrada, garáž a parkování – Dolní Žukov, Český Těšín. Nabízíme k prodeji rodinný dům o celkové obytné ploše 192 m² se dvěma samostatnými bytovými jednotkami, situovaný v klidné části Dolního Žukova. Dům nabízí výjimečnou kombinaci soukromí, prostoru a flexibility využití – ideální jak pro vícegenerační bydlení, tak jako investice k pronájmu. V domě se nachází pouze dvě bytové jednotky, každá s vlastním vstupem, což zajišťuje vysoký komfort a nezávislost bydlení. Pozemek o velikosti 1952 m². Byt 3+1 o užitné ploše 98 m² nabízí dvě zastřešené terasy, půdní prostor, garáž, parkovací stání, velmi prostornou koupelnu a pozemek o výměře 416 m² určený k užívání k této jednotce. Byt 3+kk o užitné ploše 94,2 m² disponuje dvěma zastřešenými terasami, dvěma vstupy, půdním prostorem, přístřeškem pro dvě vozidla, zahradním domkem a venkovním zázemím před i za domem. Rodinný dům i obě bytové jednotky prošly kompletní rekonstrukcí v roce 2025, která zahrnovala nové rozvody, podlahy, omítky, modernizaci koupelen, novou fasádu, plastová okna i plechovou střešní krytinu. Nemovitost nabízí široké možnosti využití – komfortní rodinné bydlení, vícegenerační soužití, kombinaci vlastního bydlení a pronájmu, případně čistě investiční záměr. Lokalita poskytuje klidné prostředí s výbornou dostupností a kompletní občanskou vybaveností v dosahu. Tento dům je ideální volbou pro klienty, kteří hledají nemovitost s nadstandardním prostorem, soukromím a variabilitou využití, a zároveň chtějí zůstat v rámci města. Pro více informací nebo domluvení prohlídky mě neváhejte kontaktovat. Do konce února 2026 nabízíme prostřednictvím našeho partnera úrokové sazby od 4,29 % p.a. Více informací Vám sdělí náš specialista na prohlídce.
Podrobnosti
Základní údaje
Cena
10 490 000 Kč
Poznámka k ceně
včetně provize
ID zakázky
134268
Typ budovy
Rodinný dům
Podlahová plocha
192 m2
Plocha pozemku
1952 m2
Doplňující informace
Typ konstrukce
Cihla
Počet podlaží
2
Energ. náročnost budovy
G
Lokalita nemovitosti
Načítání úrokové sazby...
Dalších 76 nemovitostí v této lokalitě
O tuto nemovitost je velký zájem





