Výpis nemovitostí








































































Fotky
Mapa
Prodej domu 340 m², pozemek 2119 m²Český Těšín, okres Karviná
Načítání úrokové sazby...
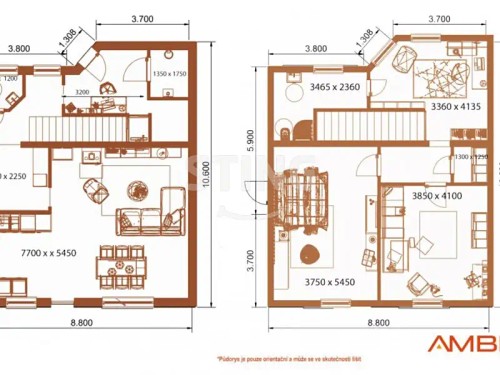
Naše společnost Vám nabízí komplex dvou samostatně stojích domů, s vlastními vstupy a pozemky, nacházející se v obci Horní Žukov. Nemovitosti byly zkolaudované na dvě bytové jednotky, spojené v mezidomí střechou, kde tímto vzniklo kryté posezení. Jedná se o zděné, zateplené, samostatné rodinné domy o zastavěné ploše 213m2, které jsou o dvou čtvercových stavbách o velikosti 2 x 5+kk, vedené pod jedním číslem popisným. Domy mají podružný elektroměr a vodoměr, samostatné vchody a jsou neprůchozí. Nemovitosti lze využít pro pohodové bydlení pro dvě rodiny, nebo lze spojit bydlení s podnikáním. Kolaudace objektu proběhla v roce 2009. V roce 2018 byla část objektu, která byla využívaná jako dvojgaráž s obytným patrem, přestavěna na bytovou jednotku o velikosti 5+kk. Každý dům má svou oplocenou zahradu. Dům A – dispoziční řešení – zádveří, kuchyně propojená s obývacím pokojem, který má výstup na přední terasu. V obývacím pokoji jsou umístěny krbová kamna, dále v tomto patře máme k dispozici, pracovnu, hostinský pokoj, oba s výstupem na zadní terasu, samostatné WC, sprchu, komoru a technickou místnost. Schodištěm se dostaneme do 2NP. kde se nachází pracovna, 2 samostatné pokoje, koupelna se sprchovým koutem a s WC, komora. Dům B – dispoziční řešení – zádveří chodba, vstup do koupelny – sprchový kout, WC, dále máme z chodby vstup do pracovny a obývacího pokoje, který je propojený s kuchyní. V obývacím pokoji je umístěn krb, je zde výstup na zadní terasu. Schodištěm se dostaneme do 2NP., kde jsou k dispozici tři prostorné pokoje, komora, koupelna s rohovou vanou, WC. Nemovitost je napojena na kanalizaci, elektřinu, vodovodní řád, možno připojit na optický kabel, který v blízkosti nemovitosti. Zdivo jsou pórobetonové tvárnice. Elektřina je vedena v mědi, voda v plastu. Střešní krytina pálená taška KM BETA, venkovní parapety žula. Vytápění je řešeno dvoumotorovým tepelným čerpadlem (vzduch – voda), v přízemí rodinných domů je podlahové topení, v 2NP, jsou závěsné radiátory. Nemovitost se nachází na pozemku o celkové výměře 2.119m2, který je celooplocen – prefabrikovaným betonovým plotem. Pozemek je vkusně rozdělen a lze jej využívat jak k pěstování, tak k relaxaci. Vstupní brána na dálkové ovládaní. Přístup z obecní cesty. Velmi dobrá dostupnost do Frýdku – Místku, Třince, Českého Těšína či Havířova (autobusová zastávka 350 m. od domu). Do konce února 2026 nabízíme prostřednictvím našeho partnera úrokové sazby od 4,29 % p.a. Více informací Vám sdělí náš specialista na prohlídce.
Podrobnosti
Základní údaje
Cena
14 990 000 Kč
ID zakázky
132610
Typ budovy
Rodinný dům
Podlahová plocha
330 m2
Plocha pozemku
2119 m2
Doplňující informace
Typ konstrukce
Cihla
Počet podlaží
2
Topení
Jiné (i bez topení)
Energ. náročnost budovy
G
Lokalita nemovitosti
Načítání úrokové sazby...
Dalších 76 nemovitostí v této lokalitě





