Výpis nemovitostí








































































Fotky
Mapa
Prodej domu 137 m², pozemek 286 m²Kobylnice, okres Brno-venkov
Načítání úrokové sazby...
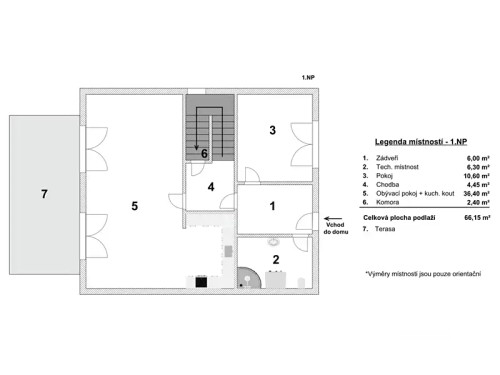
Hledáte moderní a prostorné bydlení kousek od Brna, ale s klidem venkovského prostředí a výhledem do krajiny? Představujeme vám novostavbu rodinného domu 5+kk v atraktivním projektu Rodinné domy Kobylnice, který se nachází v klidné části obce s výhledem na Mohylu míru. Dům o užitné ploše 137 m² nabízí promyšlené dispoziční řešení s důrazem na funkčnost, světlo a pohodlí. Součástí je zahrada a tři parkovací stání na vlastním pozemku. Dispozice: 1. NP: prostorný obývací pokoj s kuchyňským koutem (36,40 m²) s přímým vstupem na terasu a zahradu, pokoj (10,60 m²), technická místnost, komora, WC a zádveří. 2. NP: 3 samostatné pokoje (15,5 m², 14,3 m² a 23,40 m²), koupelna s WC a chodba. Technické parametry a standardy: - vytápění zajišťuje tepelné čerpadlo vzduch–voda, kombinované podlahové topení s otopnými tělesy - příprava na klimatizaci, fotovoltaiku, venkovní žaluzie - laminátové podlahy značky KPP - interiérové dveře SAPELI - sanita ELEMENTS, keramická dlažba - energeticky úsporné řešení, kvalitní stavební provedení Lokalita: Kobylnice jsou vyhledávanou lokalitou díky blízkosti Brna (pouhých 15 minut jízdy) a zároveň okouzlující přírodě v okolí. Nabízí veškerou občanskou vybavenost – školu, školku, obchody, restaurace a pravidelné autobusové spoje do města. Ideální místo pro ty, kdo chtějí klidné rodinné bydlení s městským komfortem. Pokud hledáte místo, kde se budete každý den těšit domů, Kobylnice jsou tou správnou volbou. Pro více informací a prohlídku mě neváhejte kontaktovat.
Podrobnosti
Základní údaje
Cena
12 980 000 Kč
ID zakázky
159
Typ budovy
Rodinný dům
Podlahová plocha
137 m2
Plocha pozemku
286 m2
Stav
Novostavba
Doplňující informace
Typ konstrukce
Cihla
Topení
Podlahové topení
Energ. náročnost budovy
C
Lokalita nemovitosti
Načítání úrokové sazby...
Dalších 76 nemovitostí v této lokalitě





