Výpis nemovitostí




















































Fotky
Mapa
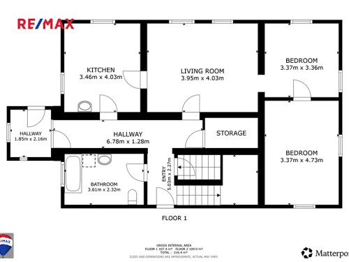
Prodej chalupy 216 m², pozemek 876 m²Tovární 413, Králíky
Nabízíme exkluzivně prodej rodinného domu, Králíky, Orlické hory. Tento dům nabízí ideální kombinaci klidného venkovského života a městského komfortu. Stavení je o dispozici 8 + 2, dvě koupelny, technické místnosti, sklep a garáž. Dům má na polovině objektu novou střešní krytinu, renovovaná okna, výměna kotle a radiátorů v nedávné době. Další části domu rekonstrukci vyžadují. Nemovitost se nachází se na rozlehlém pozemku o výměře 876 m² s potenciálem vybudovat krásnou užitnou zahradu. V blízké vzdálenosti lyžařská střediska Dolní Morava a Mlýnický Dvůr. Toto místo je skvělou volbou pro milovníky přírody a klidu, kteří ocení okolní lesy s možností procházek či cyklistiky. Pro více informací a prohlídku neváhejte kontaktovat makléře.
Podrobnosti
Základní údaje
Cena
3 499 000 Kč
ID zakázky
0020-NP10690
Typ budovy
Chalupa
Podlahová plocha
876 m2
Plocha pozemku
876 m2
Doplňující informace
Typ konstrukce
Jiný
Počet podlaží
2
Energ. náročnost budovy
G
Dalších 55 nemovitostí v této lokalitě





