Výpis nemovitostí
















































Fotky
Mapa
Prodej domu 62 m², pozemek 333 m²U Cukrovaru 140, Mratín
Načítání úrokové sazby...
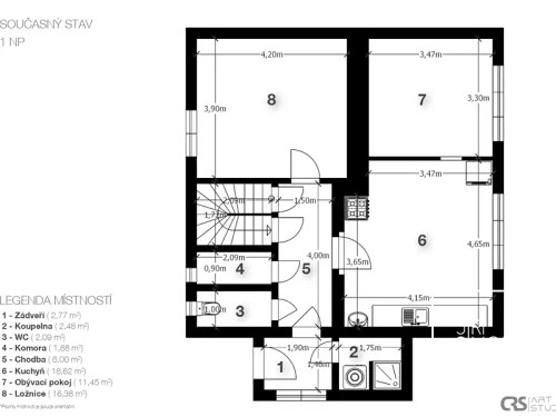
Na prodej rodinný dům v Mratíně v rezidenční čtvrti v ulici U Cukrovaru 140 se současnou dispozicí 2+1 a velkou půdou, kterou je možné předělat na další tři pokoje. Současná obytná plocha domu je 62 m2 + stejná výměra je v podroví. K domu náleží pozemek s výměrou 333 m2. Jedná se o prodej těchto nemovitých věci: Rodinný dům č.p. 140 a pozemek parc. č. st. 89/2, st. 582 a 150/8 v obci Mratín, okres Praha-východ, katastrální území Mratín. Rodinný dům má 2 nadzemní podlaží. Aktuálně je v 1. NP byt s dispozicí 2+1 s koupelnou a wc. V 2.NP je možné vybudovat podkrovní vestavbu, přičemž nadezdívka je vysoká a umožňuje bezproblémovou plnohodnotnou vestavbu dalších tří pokojů a wc. Dům je starší v původním stavu, ale velmi dobře udržovaný. V domě je možné bydlet i když je velký předpoklad pro jeho rekonstrukci nebo modernizaci a rozšíření na současné půdě. Také existuje varianta dům strhnout a na jeho místě postavit dům nový. Záleží na vaší preferenci. Dům je připojen na elektřinu, vodu a kanalizaci. Nákup domu je možní financovat hypotéčním úvěrem.
Podrobnosti
Základní údaje
Cena
6 900 000 Kč
Poznámka k ceně
cena je kompletní a obsahuje všechny poplatky
ID zakázky
N00486
Typ budovy
Rodinný dům
Podlahová plocha
62 m2
Plocha pozemku
333 m2
Stav
Před rekonstrukcí
Doplňující informace
Typ konstrukce
Cihla
Počet podlaží
2
Energ. náročnost budovy
G
Lokalita nemovitosti
Načítání úrokové sazby...
Dalších 123 nemovitostí v této lokalitě





