Výpis nemovitostí






























































Fotky
Mapa
Prodej domu 485 m², pozemek 670 m²K Novému dvoru 116/47, Praha 4 - Lhotka
Načítání úrokové sazby...
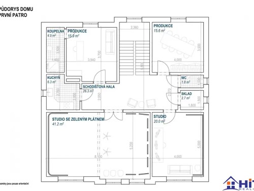
Nabízíme k prodeji výjimečný rodinný dům s velkorysou užitnou plochou, zahradou a parkováním na pozemku, situovaný v klidné vilové čtvrti Praha 4 - Lhotka. Dům se nachází v rezidenční lokalitě s vilovou zástavbou, dostatkem zeleně a velmi dobrou dostupností do centra města. V bezprostřední blízkosti se rozkládá přírodní park Velký háj a do budoucna bude lokalitu výrazně zatraktivňovat plánovaná stanice metra D Nové Dvory. Nemovitost je podsklepená, má tři nadzemní podlaží a jedno podzemní podlaží, přičemž celková plocha činí 485 m2. Dům stojí na pozemku o výměře 670 m2, jehož součástí je zahrada orientovaná do klidného vnitrobloku, nabízející dostatek soukromí i prostoru pro relaxaci. Parkování je možné přímo na pozemku. Dům je ve velmi dobrém technickém stavu, zásadní stavební úpravy proběhly v letech 2004 - 2007, zároveň však nabízí prostor pro modernizaci či úpravy dle individuálních potřeb nového majitele. Dispozice je mimořádně variabilní a umožňuje pohodlné vícegenerační bydlení, případně kombinaci bydlení s podnikáním. Jednotlivá podlaží jsou propojena centrálním schodištěm a každé patro disponuje vlastním funkčním zázemím. V současné době je dům pronajat a užíván jako sídlo společnosti, přičemž generuje pravidelný příjem. Do budoucna však nabízí široké spektrum dalšího využití podle záměru nového vlastníka. Lokalita nabízí kompletní občanskou vybavenost v pěším dosahu a výbornou dopravní dostupnost. Spojení zajišťují autobusové linky ke stanicím metra Kačerov a Želivského, přičemž plánovaná výstavba trasy metra D ještě zvýší atraktivitu celé oblasti. Nemovitost je ideální volbou pro ty, kteří hledají prostorný dům v prestižní části Prahy s dlouhodobým potenciálem.
Podrobnosti
Základní údaje
Cena
34 000 000 Kč
ID zakázky
602
Typ budovy
Rodinný dům
Podlahová plocha
485 m2
Plocha pozemku
670 m2
Doplňující informace
Typ konstrukce
Cihla
Počet podlaží
2
Topení
Plynové topení
Nalezeno v inzerátu
Stav koupelny
Nový
Stav kuchyně
Nový
Rok dokončení stavby
1999 a starší
Lokalita nemovitosti
Načítání úrokové sazby...
Dalších 498 nemovitostí v této lokalitě





