Výpis nemovitostí






















































Fotky
Mapa
Prodej domu 85 m², pozemek 237 m²Třebovle 25, Třebovle
Načítání úrokové sazby...
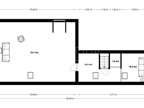
K prodeji nabízíme rodinný dům v obci Třebovle. O obci Třebovle: Třebovle je obec ležící v okrese Kolín. Obec je obklopena malebnou krajinou, která vybízí k procházkám a cykloturistice. V blízkosti se nacházejí lesy a pole, které nabízejí únik od shonu velkoměsta. Třebovle je snadno dostupná z Kolína i okolních obcí. Dům je určen k celkové rekonstrukci. - plastová okna - elektrické přímotopy + krbová kamna - ohřev vody: bojler - aktuálně neobyvatelné podkroví - nezateplená střecha s pálenými taškami - možnost parkování na pozemku - dům není zatížen zástavním právem ani jiným právním problémem Dojezd do: Kolína: 20 min Český Brod: 13 min Praha - Černý Most (metro B): 35 min Orientační velikost místností a ostatních prostor: Ložnice: 16,04 m2 Obývací pokoj + kuchyňský kout: 24,85 m2 Pokoj: 20,88 m2 Koupelna: 6,74 m2 Komora1: 3,81 m2 Komora2: 3,24 m2 Chodba: 9,36 m2 -------------------------- Celkem: 84,92 m2 + podkroví: 38,6 m2 + půda: 78,7 m2 + technická místnost: 12,95 m2 + kumbál: 5,6 m2 + otevřená dílna: 13,39 m2
Podrobnosti
Základní údaje
Cena
4 899 000 Kč
ID zakázky
19058
Typ budovy
Rodinný dům
Podlahová plocha
155 m2
Plocha pozemku
237 m2
Doplňující informace
Typ konstrukce
Jiný
Počet podlaží
1
Energ. náročnost budovy
G
Lokalita nemovitosti
Načítání úrokové sazby...
Dalších 39 nemovitostí v této lokalitě





