Výpis nemovitostí




































Fotky
Mapa
Prodej domu 143 m², pozemek 509 m²Tršice, okres Olomouc
Načítání úrokové sazby...
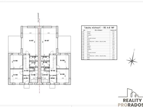
Nabízíme vám novostavbu rodinného domu v obci Tršice (katastrální území Přestavlky) o dispozici 5+kk se zahradou a celkovou výměrou pozemku 509 m². Dvoupodlažní dům s užitnou plochou 143,26 m² je situován na rovinatém pozemku v klidné lokalitě s výbornou dostupností do Olomouce. Dům je prodáván ve stavu „na klíč“. Součástí výstavby je tepelné čerpadlo, které zajišťuje nízké provozní náklady, okna s trojskly a použití vysoce kvalitních materiálů pro dlouhou životnost a nadčasový design. Vnitřní uspořádání domu bylo navrženo tak, aby poskytovalo maximální komfort, dostatek prostoru a světla pro moderní rodinné bydlení. Dispozice: 1. NP: -vstupní chodba, -dvě ložnice, -prostorný obývací pokoj s kuchyní a jídelním koutem se vstupem na terasu, -koupelna s toaletou, -samostatná toaleta, -technická místnost a spíž. 2. NP: -dvě ložnice se šatnami, -koupelna s toaletou. Další informace: -plánované předání nemovitosti: květen 2026, -klidná lokalita s příjemnou atmosférou venkova a dobrou dostupností do města, -možnost úprav standardů dle přání klienta. Pro více informací o standardech výstavby nebo pro sjednání osobní prohlídky kontaktujte makléřku nabídky. Těšíme se na vás!
Podrobnosti
Základní údaje
Cena
10 590 000 Kč
Poznámka k ceně
včetně právního servisu, provize RK, cena v RK
ID zakázky
28154
Typ budovy
Rodinný dům
Podlahová plocha
143 m2
Plocha pozemku
509 m2
Stav
Novostavba
Doplňující informace
Typ konstrukce
Cihla
Počet podlaží
2
Energ. náročnost budovy
G
Lokalita nemovitosti
Načítání úrokové sazby...
Dalších 76 nemovitostí v této lokalitě





