Výpis nemovitostí






























































Fotky
Mapa
Prodej domu 145 m², pozemek 463 m²Tuhaň, okres Mělník
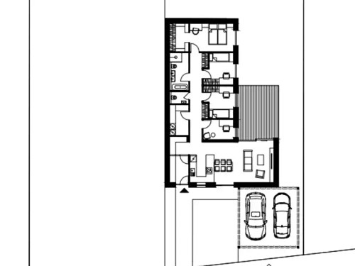
Exklusivně Vám nabízíme prodej pasivního rodinného domu č. 6. o dispozici 5+KK s užitnou plochou 131,9 m a pozemkem 428 m2, který se dá rozšířit o dalších 600m2 v jedinečné lokalitě, která Vás doslova uchvátí. Jedná se o Rezidenční projekt v obci Červená Píska. Pokud se přijedete přesvědčit osobně na lokalitu, jistě pochopíte, proč tento projekt nese právě Jméno Oáza. Jde o velice atypický řešené nízkoenergetické dvojdomy, ve vysokých standardech, kde se klade důraz především na soukromí obou polovin domu. Dispozice domu: Přes zádveří je možné projít do menší otevřené šatny a odtud rovnou do obývacího pokoje s kuchyňským koutem. To může být velká výhoda pro ty z Vás, kteří pracujete z domu a nechcete si klienty, případně návštěvy vodit skrze celý dům. Z prostorného obýváku vede chodba, ze které jsou přístupné všechny ostatní místnosti v domě. Tedy pracovna, technická místnost, dva dětské pokoje, ložnice s vlastní šatnou a v neposlední řadě koupelna s vanou i sprchovým koutem a WC. Navíc je zde i samostatné WC s umyvadlem. U obývacího pokoje a ložnice je přímý vstup na terasu. Výhodou tohoto domu je, že má absolutní soukromí s výhledem do zeleně a v podstatě bez sousedů. Kolaudace 3 dvojdomů proběhla již v srpnu 2023, tento poslední byl zkolaudován letos v létě. Pokud si přejete bydlet v rezidenčním komplexu s přístupem k jezeru a dobrou dostupností nedaleko Prahy, pak je tento projekt třeba právě pro Vás. Z vedlejší obce Tišice jezdí vlak na Hlavní nádraží, po modernizaci tratě bude dojezd do 30 minut. Okresní město Mělník se nachází 7 kilometrů na severozápad, ráno je dosažitelné školním autobusem do 15 minut. Moderní mateřská škola je v obci Tuhaň, ZŠ je 2 km směrem k Mělníku ve vedlejší obci v Záboří. Populární jezero Konětopy a Lhota jsou vzdáleny 10 minut autem. Lokalita na západní straně přiléhá k obci, byť vzdálenost k nejbližšímu domu je více jak 200 metrů, na severní a východní straně se rozkládá volná krajina, na jižní straně přes silnici se nachází rozsáhlý lužní les. Volná krajina vybízí k dlouhým vycházkám, k projížďkám na horském kole či vyjížďkám na koni. V tomto speciálním místě, který je součástí budoucí rezidence na Červených Pískách, bych chtěl vyzdvihnout perfektní fungování a správu Obce Tuhaň, která po celý rok pořádá spoustu akcí pro všechny věkové kategorie. Obec Červená Píska spadá právě pod obec Tuhaň, odkud je možné se dostat do Letňan je 20-25 minut, na Černý most se dostanete přes Starou Boleslav a dálnici D10 za 30 minut. Domy jsou již napojeny na všechny inženýrské sítě - vodovod, elektřina, plyn a optický internet. Jedná se o poslední volnou bytovou jednotku v tomto projektu. Pro více informací kontaktujte makléře Pro komunikaci uvádějte evidenční číslo zakázky N103978.
Podrobnosti
Základní údaje
Cena
11 499 000 Kč
Poznámka k ceně
Cena včetně právního a realitního servisu
ID zakázky
N103978
Typ budovy
Rodinný dům
Podlahová plocha
145 m2
Plocha pozemku
463 m2
Doplňující informace
Typ konstrukce
Cihla
Počet podlaží
1
Topení
Plynové topení
Energ. náročnost budovy
A
Nalezeno v inzerátu
Stav koupelny
Výborný
Lokalita nemovitosti
Dalších 84 nemovitostí v této lokalitě





