Výpis nemovitostí




































































Fotky
Mapa
Prodej domu 164 m², pozemek 476 m²Bulharská 775, Úvaly
11 450 000 Kč
Načítání úrokové sazby...
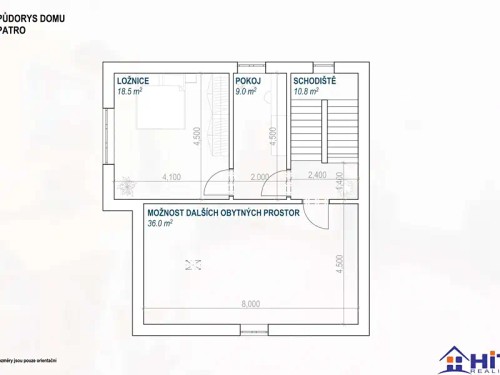
Nabízíme k prodeji rodinný dům, nacházející se v oblíbené rezidenční lokalitě Úvaly, s výbornou dostupností do Prahy. Dům byl postaven v roce 1945 a disponuje užitnou plochou 164 m2, rozloženou do dvou nadzemních podlaží a sklepa. Poslední rekonstrukce proběhla v roce 2014 -koupelna, kuchyň, wc, zateplení obvodových zdí a další drobné úpravy. Dům je plně funkční elektrika, plynové topení, napojení na městskou kanalizaci s vlastní studnou a s možností napojení na městský vodovod, přípojka internetu. Součástí domu je pozemek o celkové ploše 476 m2 se zahradou (145 m2), která poskytuje dostatek prostoru pro rodinné využití, relaxaci i zeleň. Díky své velikosti nabízí zahrada řadu možností, ať už pro klidné posezení, dětské zázemí nebo budoucí úpravy dle individuálních potřeb. Významnou výhodou nemovitosti je dvougaráž, která zajišťuje komfortní parkování i další úložné prostory. Na pozemku se nachází také místo, které přímo nabízí k vytvoření příjemného letního posezení. Lokalita Úvaly patří dlouhodobě mezi nejvyhledávanější v rámci Prahy-východ, a to zejména díky kompletní občanské vybavenosti a příjemnému rezidenčnímu charakteru. V místě naleznete školy, školky, obchody, lékaře i široké možnosti volnočasových aktivit. Velkou předností je rovněž vynikající dopravní dostupnost, kdy se do Prahy dostanete přibližně za 25 minut, a to jak autem, tak vlakem. Tato nemovitost je ideální volbou pro ty, kteří hledají dům s potenciálem v zavedené lokalitě a chtějí si vytvořit domov přesně podle svých představ. Pro více informací nebo domluvení prohlídky nás neváhejte kontaktovat.
Podrobnosti
Základní údaje
Cena
10 920 000 Kč
ID zakázky
601
Typ budovy
Rodinný dům
Podlahová plocha
164 m2
Plocha pozemku
476 m2
Stav
Před rekonstrukcí
Doplňující informace
Typ konstrukce
Cihla
Počet podlaží
2
Topení
Plynové topení
Energ. náročnost budovy
G
Nalezeno v inzerátu
Stav koupelny
Dobrý
Stav kuchyně
Výborný
Rok dokončení stavby
1999 a starší
Lokalita nemovitosti
11 450 000 Kč
Načítání úrokové sazby...
Dalších 147 nemovitostí v této lokalitě





